Description
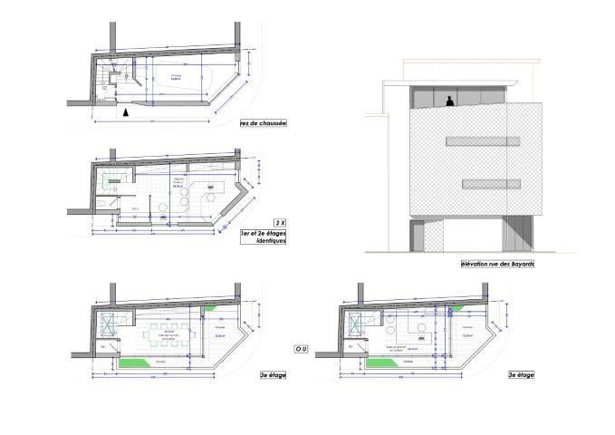
SOUS COMPROMIS DE VENTE!! Terrain à bâtir idéalement situé au croisement entre le Quai Saint-Léonard et la rue des Bayards à Liège, construction possible sur plusieurs niveaux. Largeur: 7m50 et profondeur: 4m10. Nous disposons d'un accord de principe (datant de 2012) pour la construction d'un immeuble de bureau (rez : garage + 3 étage de bureaux). référence cadastrale: 10ème division LIEGE, Section B numéro 229 T 2 pour une contenance de 30 m². Idéal pour placement et/ou constructeurs. Avis préalable de l'urbanisme de Liège , plans et informations en l'agence immobilière (sur rdv : 04/366.00.26). Actuellement libre de constructeur et d'architecte mais possibilité d'acquisition avec le projet et l'architecte. A VOIR!!
Adresse :
Rue des Bayards - 4000 Liège
Caractéristiques
Général
| Référence | 2248526 |
|---|---|
| Catégorie | Terrain à bâtir |
| Surface du terrain | 30 m² |
