
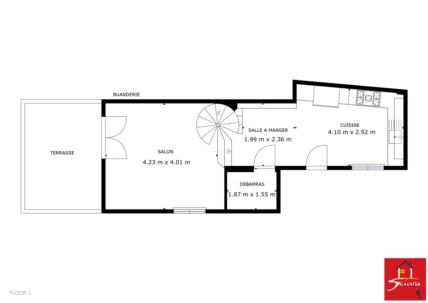
*OPTION/VENDU* L'immobilière Sciara a le plaisir de vous présenter cette coquette maison située proche de l'ensemble des commodités et axes autoroutiers. Elle se compose au rez de chaussée, d'une cuisine équipée, d'une salle à manger avec une pièce débaras et d'un salon lumineux donnant sur une belle terrasse. Au premier étage, deux chambres séparées et une salle de bain. La maison dispose d'un grand jardin non attenant à celle-ci avec un abris de jardin et l'accès se fait par une servitude de passage. D'un point de vue technique, châssis en bois double vitrage, toiture plate en ordre, chaudière Vaillante récente, RC : 400 €, électricité conforme, PEB D (possibilité de frais d'enregistrement réduit à 6%). Informations données à titre indicatives et non contractuelles. Information et/ou visites au 04/366.00.26
Adresse :
Rue de Pontisse 31 - 4683 Oupeye
Référence | 5362166 |
---|---|
Catégorie | Maison unifamiliale |
Meublé | Non |
Nombre de chambres | 2 |
Nombre de salles de bain | 1 |
Jardin | Oui |
Surface du jardin | 270 m² |
Garage | Non |
Terrasse | Oui |
Parking | Oui |
Surface habitable | 88 m² |
Surface du terrain | 101 m² |
Disponibilité | à l'acte |
Année de construction | 2004 |
---|---|
Nombre de garage | 0 |
Parking intérieur | Non |
Parking extérieur | Oui |
Parking(s) intérieur (nombre) | 0 |
Parking(s) extérieur (nombre) | 2 |
Type de toit | toit plat |
Accès handicapés | Non |
---|---|
Cuisine | Oui |
Chauffage (ind/coll) (type (ind/coll)) | individuel |
Ascenseur | Non |
Double vitrage | Oui |
Chauffage (type) | gaz (chau. centr.) |
Type de cuisine | équipée |
Sdb (type) | bain |
Orientation du bâtiment (façade arrière) | sud-est |
---|---|
Type d'environnement | résidentiel |
Type d'environnement 2 | zone d'habitation |
Exposition de la façade avant | nord-ouest |
Risque d'inondation (type innondation) | pas situé en zone inondable |
Risque d'inondation 2023 (type innondation) | Classe A (aucune chance) |
Largeur front de rue | 1 |
---|---|
Surface bâtie (surf. bât. princ.) | 44 |
Nbre de toilette(s) (nombre) | 1 |
Nombre de sdd | 1 |
Chambre 1 (surface) | 7 m² |
Chambre 2 (surface) | 12 m² |
Largeur de façade | 13 |
Nbre de terrasse(s) (nombre) | 1 |
Salle de séjour (surface) | 17 m² |
Salle à manger (surface) | 5 m² |
Cuisine (surface) | 12 m² |
Orientation de la terrasse 1 | sud-est |
Piscine | Non |
---|---|
Jardin (détails) | plat |
Sous régime TVA | Non |
---|---|
Loué | Non |
Section | A |
---|---|
Numéro (n°) | 446d |
Revenu cadastral (€) (montant) | 400 € |
Servitude | Oui |
---|---|
Jugement en cours | Non |
Permis de bâtir | Non |
Permis de lotir | Non |
Destination bâtiment (type) | privé - unifamilial |
Droit de préemption | Non |
Affectation urbanistique | zone d'habitat |
Intimation en justice | Non |
Égouts | Oui |
---|---|
Électricité | Oui |
Télévision par cable | Oui |
Gaz | Oui |
Câbles téléphoniques | Oui |
Eau | Oui |
Châssis (type) | bois |
---|
Surface de terrasse 1 | 20 m² |
---|
Type de revêtement de sol | carrelages |
---|
Magasins | Oui |
---|---|
Ecoles | Oui |
Transports en commun | Oui |
Centre sportif | Oui |
Autoroute | Oui |
Certificat d'électricité (oui/non) | oui, conforme |
---|---|
Certificat électricité - date | 22/10/2003 |
Label PEB (classe) | D |
---|---|
PEB E-SPEC (kwh/m²/an) | 256 |
E total (Kwh/an) | 22540 |
PEB code unique | 20141231013840 |
PEB valide jusqu'au (datetime) | 31/12/2024 |
Date du PEB (datetime) | 31/12/2014 |