
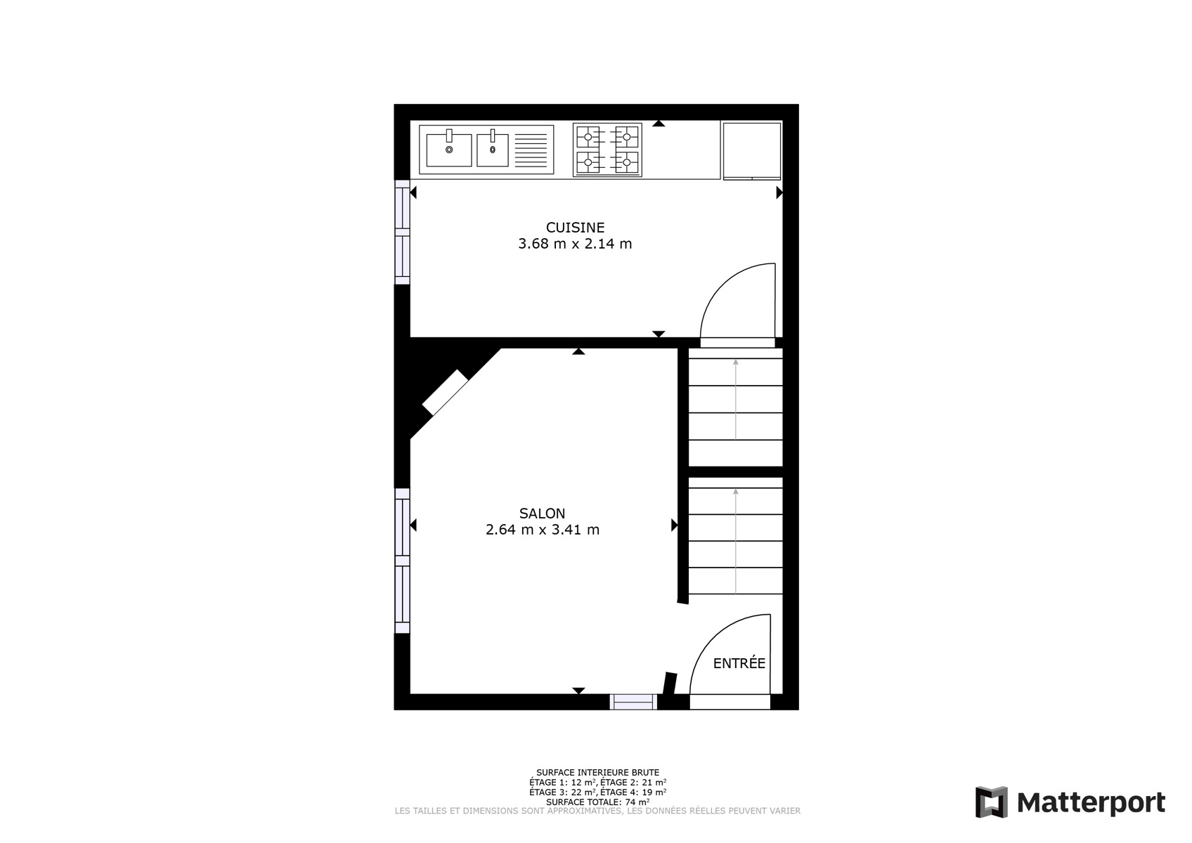
*OPTION* Visite virtuelle : https://my.matterport.com/show/?m=4eWKcJGK8Dk - L'immobilière Sciara a le plaisir de vous présenter cette coquette maison à rénover, bien située dans une impasse juste derrière la grand route (et donc proche de l'ensemble des commodités). La maison se compose comme suit : au rez-de-chaussée: salon/salle à manger et une cuisine (à remplacer), 1er étage: une chambre de 10m², une salle de bain (baignoire, WC, évier) et un dressing. 2ème étage: 1 chambre et un bureau/dressing de 9m² (en enfilade). -1: une cave. Châssis double vitrage PVC et simple vitrage bois, chauffage au gaz (convecteurs), électricité non conforme (à remettre en conformité), pas de calcaire (eau de source alimentant la maison). Avis aux investisseurs ou premier achat. Proche du centre de Liège et de toutes les commodités. À voir au plus vite ! Possibilité de frais à 3 %. Faire offre à partir de 75.000€
Adresse :
Impasse Gérard 11 - 4030 Liège Grivegnée
Référence | 6785536 |
---|---|
Catégorie | Maison |
Meublé | Non |
Nombre de chambres | 2 |
Nombre de salles de bain | 1 |
Garage | Non |
Terrasse | Non |
Parking | Non |
Surface habitable | 70 m² |
Disponibilité | à l'acte |
Parking intérieur | Non |
---|---|
Parking extérieur | Non |
Type de toit | en pente |
Accès handicapés | Non |
---|---|
Cuisine | Oui |
Chauffage (ind/coll) (type (ind/coll)) | individuel |
Ascenseur | Non |
Double vitrage | Oui |
Chauffage (type) | gaz |
Sdb (type) | bain |
Nbre de toilette(s) (nombre) | 1 |
---|---|
Chambre 1 (surface) | 10 m² |
Chambre 2 (surface) | 13 m² |
Nbre de terrasse(s) (nombre) | 1 |
Salle de séjour (surface) | 10 m² |
Cuisine (surface) | 8 m² |
Bureau (surface) | 9 m² |
Bureau | Oui |
---|---|
Grenier | Oui |
Cave | Oui |
Piscine | Non |
---|
Sous régime TVA | Non |
---|---|
Loué | Non |
Habité (détails) | vide |
Section | B |
---|---|
Numéro (n°) | 236s |
Revenu cadastral (€) (montant) | 375 € |
Servitude | Non |
---|---|
Jugement en cours | Non |
Permis de bâtir | Non |
Permis de lotir | Non |
Destination bâtiment (type) | privé - habitation |
Droit de préemption | Non |
Intimation en justice | Non |
Égouts | Oui |
---|---|
Électricité | Oui |
Télévision par cable | Oui |
Gaz | Oui |
Câbles téléphoniques | Oui |
Eau | Oui |
Châssis (type) | bois ou pvc |
---|
Type d'environnement | calme |
---|---|
Type d'environnement 2 | boisé |
Type de revêtement de sol | carrelages |
---|
Magasins | Oui |
---|---|
Ecoles | Oui |
Transports en commun | Oui |
Centre sportif | Oui |
Autoroute | Oui |
Certificat d'électricité (oui/non) | oui, non conforme |
---|
Label PEB (classe) | F |
---|---|
PEB E-SPEC (kwh/m²/an) | 438 |
E total (Kwh/an) | 31527 |
PEB code unique | 20241108015923 |
PEB valide jusqu'au (datetime) | 08/11/2034 |
Date du PEB (datetime) | 08/11/2024 |