Description
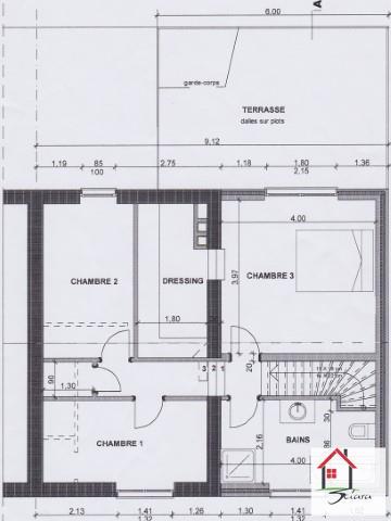
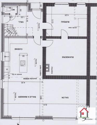
SOUS COMPROMIS DE VENTE!! Bonne maison d'habitation 3 façades en cours de rénovation idéalement située dans une rue calme et proche des commodités. Composée au rez-de-chaussée d'un hall d'entrée, cuisine, salon, salle-à-manger, buanderie et un bureau avec accès cave. Au 1er étage: 3 chambres dont une avec dressing et une avec terrasse avec une salle de bains (baignoire, wc, douche, évier). Très beau jardin plat sur l'arrière. Cette maison est vendue en l'état avec les plans d'arcihtecte ainsi que le permis d'urbanisme délivré le 6/11/2012. Chaudière vaillant murale à condensation comprise dans le prix et certains matéiraux restant dans l'immeuble. A DECOUVRIR!!
Adresse :
Rue du Tombay 33 - 4030 Liège Grivegnée
Caractéristiques
Général
| Référence | 1984411 |
|---|---|
| Catégorie | Maison |
| Nombre de chambres | 3 |
| Nombre de salles de bain | 1 |
| Jardin | Oui |
| Surface du jardin | 300 m² |
| Terrasse | Oui |
| Surface habitable | 170 m² |
| Surface du terrain | 494 m² |
| Disponibilité | à l'acte |
Nom, catégorie & situation
| Nombre d'étages | 1 |
|---|
En chiffres
| Surface bâtie (surf. bât. princ.) | 108 |
|---|---|
| Nbre de toilette(s) (nombre) | 2 |
| Surface brute | 180 m² |
| Largeur de façade | 9 |
| Cuisine (surface) | 12 m² |
| Orientation de la terrasse 1 | sud-est |
Divers
| Salle à manger | Oui |
|---|---|
| Hall d'entrée | Oui |
| Cave | Oui |
Equipement de base
| Cuisine | Oui |
|---|---|
| Double vitrage | Oui |
Raccordements
| Égouts | Oui |
|---|---|
| Gaz | Oui |
| Eau | Oui |
Équipements techniques
| Châssis (type) | pvc |
|---|
Spécificités terrain
| Type d'environnement | calme |
|---|---|
| Type d'environnement 2 | zone d'habitation |
Domaine juridique
| Permis de bâtir | Oui |
|---|---|
| Affectation urbanistique | zone d'habitat |
Caractéristiques Principales
| Surface de terrasse 1 | 25 m² |
|---|
Bâtiment
| Type de façade avant | brique |
|---|
Cadastre
| Revenu cadastral (€) (montant) | 350 € |
|---|
Certificats / Attestations
| Certificat d'électricité (oui/non) | oui, non conforme |
|---|
Equipement extérieur
| Jardin (détails) | plat |
|---|
Certificats énergétiques
| PEB E-SPEC (kwh/m²/an) | 821 |
|---|---|
| PEB (détails) | 20110127000290 |
