Description
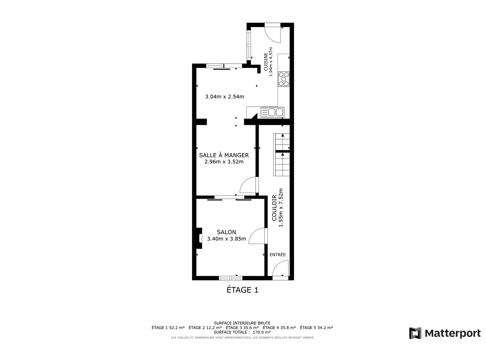
***OPTION*** VISITE VIRTUELLE : https://my.matterport.com/show/?m=kV52KfcRwsN - Maison idéale pour une colocation ou pour une famille nombreuse! PEB:D! Venez découvrir cette spacieuse située à 2 pas de la Médiacité et proche de l'ensemble des commodités (écoles, commerces, transports en commun,...). Composé au rez-de-chaussée d'un hall d'entrée, un salon + salle à manger et une cuisine sur l'arrière. À l'extérieur : une cour avec une remise. À l'entre-sol: une salle de bain. 1er étage : une grande chambre et une plus petite. Au +2: une grande chambre et une plus petite. Au niveau +3: un grand grenier aménageable en une chambre supplémentaire (possibilité 5ème chambre). Au -1: une cave. D'un point de vue technique: châssis en bois et en PVC double vitrage, chauffage central au gaz (chaudière murale VAILLANT de 2023) et une installation électrique à remettre en conformité. Possibilité de bénéficier des frais d'enregistrement réduits (6% - RC 674€). A DECOUVRIR RAPIDEMENT!!
Adresse :
Rue des Prébendiers 10 - 4020 Liège
Caractéristiques
Général
| Référence | 6265128 |
|---|---|
| Catégorie | Maison |
| Meublé | Non |
| Nombre de chambres | 5 |
| Nombre de salles de bain | 1 |
| Garage | Non |
| Terrasse | Oui |
| Parking | Non |
| Surface habitable | 160 m² |
| Surface du terrain | 90 m² |
| Disponibilité | à l'acte |
Nom, catégorie & situation
| Nombre d'étages | 3 |
|---|
Bâtiment
| Parking intérieur | Non |
|---|---|
| Parking extérieur | Non |
| Type de toit | en pente |
Equipement de base
| Accès handicapés | Non |
|---|---|
| Cuisine | Oui |
| Chauffage (ind/coll) (type (ind/coll)) | individuel |
| Ascenseur | Non |
| Double vitrage | Oui |
| Chauffage (type) | gaz (chau. centr.) |
| Type de cuisine | équipée |
| Sdb (type) | douche |
Divers
| Buanderie | Oui |
|---|---|
| Bureau | Oui |
| Grenier | Oui |
| Cave | Oui |
En chiffres
| Nbre de toilette(s) (nombre) | 1 |
|---|---|
| Chambre 1 (surface) | 19 m² |
| Chambre 2 (surface) | 11 m² |
| Chambre 3 (surface) | 19 m² |
| Chambre 4 (surface) | 11 m² |
| Nbre de terrasse(s) (nombre) | 1 |
| Salle de séjour (surface) | 13 m² |
| Salle à manger (surface) | 11 m² |
| Cuisine (surface) | 9 m² |
Domaine juridique
| Affectation urbanistique (type) | zone d'habitat |
|---|---|
| Servitude | Non |
| Jugement en cours | Non |
| Permis de bâtir | Non |
| Permis de lotir | Non |
| Destination bâtiment (type) | privé - habitation |
| Droit de préemption | Non |
| Affectation urbanistique | zone d'habitat |
| Intimation en justice | Non |
Sécurité
| Volets | Oui |
|---|
Equipement extérieur
| Piscine | Non |
|---|---|
| Jardin (détails) | cour |
Charges & Rendement
| Sous régime TVA | Non |
|---|---|
| Loué | Non |
| Habité (détails) | vide |
Cadastre
| Section | B |
|---|---|
| Numéro (n°) | 132c8 |
| Surface (ha/a/ca) (surf. (ha/a/ca)) | 90 |
| Revenu cadastral (€) (montant) | 674 € |
Raccordements
| Égouts | Oui |
|---|---|
| Électricité | Oui |
| Télévision par cable | Oui |
| Gaz | Oui |
| Câbles téléphoniques | Oui |
| Eau | Oui |
Équipements techniques
| Châssis (type) | bois ou pvc |
|---|
Spécificités terrain
| Type d'environnement | zone d'habitation |
|---|
Certificats / Attestations
| Attestation du sol | Oui |
|---|---|
| Certificat d'électricité (oui/non) | non |
Type de matériau & évaluation
| Type de revêtement de sol | carrelages |
|---|
À proximité
| Magasins | Oui |
|---|---|
| Ecoles | Oui |
| Transports en commun | Oui |
| Autoroute | Oui |
Certificats énergétiques
| Label PEB (classe) | D |
|---|---|
| PEB E-SPEC (kwh/m²/an) | 295 |
| E total (Kwh/an) | 4675 |
| PEB code unique | 20240925019654 |
| PEB valide jusqu'au (datetime) | 25/09/2034 |
| Date du PEB (datetime) | 25/09/2024 |
