
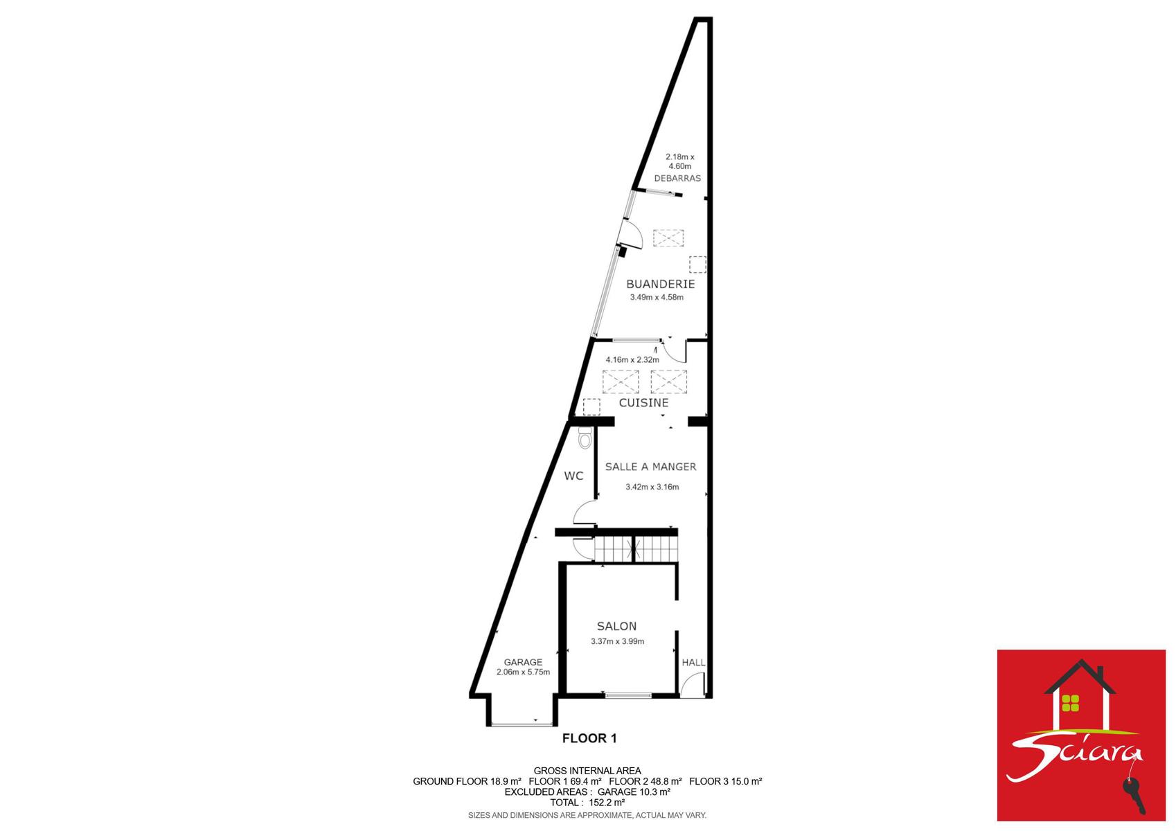
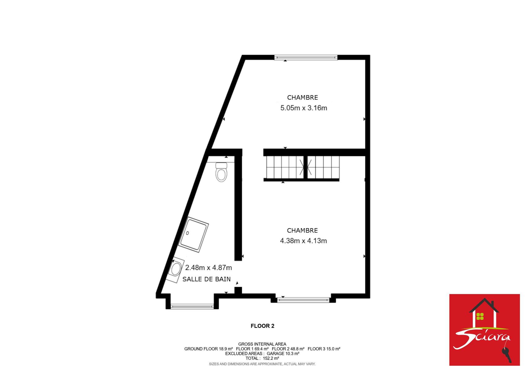
***OPTION*** Visite virtuelle : https://my.matterport.com/show/?m=m2ciWXDp5HN. L'agence immobilière SCIARA vous présente cette belle maison en partie rénovée (reste quelques travaux à prévoir) située proche de l'ensemble des commodités (écoles, bus, commerces, etc). Composée au rez-de-chaussée d'un petit sas d'entrée, un salon, une salle à manger ouverte sur une cuisine et donnant accès à une remise. Le rez-de-chaussée comprend également un WC indépendant et un garage. Au 1er étage : hall de nuit avec 2 chambres dont une donnant accès à une salle de bain rénovée (douche, WC, évier). 2ème étage: grenier aménageable en une 3ème chambre. -1: une cave. La maison est saine et équipée d'un chauffage central au gaz nouveau, de châssis en PVC double vitrage en PVC (reste quelques châssis à remplacer), d'une installation électrique à finaliser. Revenu cadastral modeste permettant l'accès aux frais réduits à 6% (RC:386€). Jardin non attenant de +-260m². Maison libre à l'acte, idéale pour un premier achat. Informations complémentaires et/ou visites au 04/366.00.26. Informations données à titre indicatif et non contractuelles. A DECOUVRIR!!
Adresse :
Rue de Boncelles 355 - 4102 Seraing Ougrée
Référence | 5361194 |
---|---|
Catégorie | Maison |
Meublé | Non |
Nombre de chambres | 3 |
Nombre de salles de bain | 1 |
Jardin | Oui |
Surface du jardin | 260 m² |
Garage | Oui |
Terrasse | Non |
Parking | Non |
Surface habitable | 131 m² |
Surface du terrain | 90 m² |
Disponibilité | à l'acte |
Nombre d'étages | 1 |
---|
Nombre de garage | 1 |
---|---|
Parking intérieur | Oui |
Parking extérieur | Oui |
Type de toit | en pente |
Accès handicapés | Non |
---|---|
Cuisine | Oui |
Chauffage (ind/coll) (type (ind/coll)) | individuel |
Ascenseur | Non |
Double vitrage | Oui |
Chauffage (type) | gaz (chau. centr.) |
Type de cuisine | non-équipée |
Sdb (type) | douche |
Largeur front de rue | 6 |
---|---|
Nbre de toilette(s) (nombre) | 1 |
Chambre 1 (surface) | 18 m² |
Chambre 2 (surface) | 16 m² |
Chambre 3 (surface) | 15 m² |
Salle de séjour (surface) | 13 m² |
Salle à manger (surface) | 11 m² |
Cuisine (surface) | 9 m² |
Buanderie | Oui |
---|---|
Véranda | Oui |
Grenier | Oui |
Cave | Oui |
Volets | Oui |
---|
Piscine | Non |
---|
Sous régime TVA | Non |
---|---|
Loué | Non |
Habité (détails) | vide |
Section | c |
---|---|
Numéro (n°) | 2h5 |
Revenu cadastral (€) (montant) | 386 € |
Servitude | Non |
---|---|
Jugement en cours | Non |
Permis de bâtir | Non |
Permis de lotir | Non |
Destination bâtiment (type) | privé - habitation |
Intimation en justice | Non |
Type d'intimation | pas de correction juridique ou mesure administrative imposée |
Égouts | Oui |
---|---|
Électricité | Oui |
Télévision par cable | Oui |
Gaz | Oui |
Câbles téléphoniques | Oui |
Eau | Oui |
Châssis (type) | pvc |
---|
Type d'environnement | calme |
---|---|
Type d'environnement 2 | calme |
Risque d'inondation (type innondation) | pas situé en zone inondable |
Type de zone inondable | zone riveraine délimitée |
Type de revêtement de sol | carrelages |
---|
Magasins | Oui |
---|---|
Ecoles | Oui |
Transports en commun | Oui |
Centre sportif | Oui |
Autoroute | Oui |
Certificat d'électricité (oui/non) | oui, non conforme |
---|
Label PEB (classe) | F |
---|---|
PEB E-SPEC (kwh/m²/an) | 469 |
E total (Kwh/an) | 62351 |
PEB code unique | 20200618023073 |
PEB valide jusqu'au (datetime) | 18/06/2030 |