
***SOUS COMPROMIS DE VENTE*** Maison de commerce et d'habitation à rénover et offrant de superbes volumes (commerce + duplex 4 chambres), située proche de l'ensemble des commodités (bus, commerces, écoles, axes autoroutiers). Composée au rez-de-chaussée d'un espace commercial de +/- 130 m² anciennement exploité en tant que salle de musculation avec vestiaires. Au 1er étage: appartement en duplex composé d'un salon, salle-à-manger, cuisine et 2 chambres. Au 2ème étage: 1 grande pièce (possibilité 2 chambres). Au niveau -1: 1 cave. Entrée commune pour le commerce et les étages, 1 compteur électrique bi-horaire, 1 compteur eau et gaz. Possibilité d'utiliser les étages pour étendre la surface commerciale (idéale pour des bureaux, et/ou profession libérale). Jardin avec remise. Idéale pour investissement ou développement d'une activité commerciale (professions libérales, PME, etc.). Nombreuses possibilités d'aménagement (sous réserve d'autorisation urbanistique). A VOIR AU PLUS VITE!!
Adresse :
Rue de Boncelles 35 - 4102 Seraing Ougrée
Référence | 3216515 |
---|---|
Catégorie | Immeuble mixte |
Nombre de chambres | 3 |
Nombre de salles de bain | 1 |
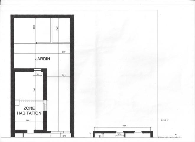
Jardin | Oui |
Surface du jardin | 75 m² |
Terrasse | Oui |
Surface habitable | 270 m² |
Surface du terrain | 240 m² |
Disponibilité | à l'acte |
Cuisine | Oui |
---|
Nbre de toilette(s) (nombre) | 1 |
---|---|
Surface brute | 270 m² |
Cuisine (surface) | 17 m² |
Salle de fitness | Oui |
---|---|
Téléphone | Oui |
Salle de fitness (surface) | 132 m² |
Isolation | Oui |
---|
Type d'environnement | zone d'habitation |
---|
Revenu cadastral (€) (montant) | 1554 € |
---|
Gaz | Oui |
---|---|
Eau | Oui |
Certificat d'électricité (oui/non) | oui, non conforme |
---|
Autoroute | Oui |
---|
PEB E-SPEC (kwh/m²/an) | 287 |
---|---|
E total (Kwh/an) | 51166 |
PEB code unique | 20171008001319 |