Maison - vendu - 4100 Seraing

Maison - à vendre - 4100 Seraing
3 1 115 m² PEB : D

Description

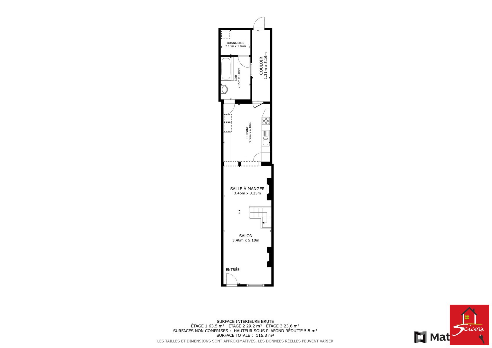
*OPTION* VISITE VIRTUELLE : https://my.matterport.com/show/?m=qSGWEMYnWWn - L'agence immobilière SCIARA a le plaisir de vous présenter cette maison à rafraichir proche de l'ensembles des commodités et axes autoroutiers. Composée au rez-de-chaussée d'une pièce de vie (salon + salle-à-manger) ouverte sur une cuisine, une salle de bains, terrasse et jardin plat sur l'arrière. Au 1er étage: petit palier avec 2 chambres dont une donnant accès à un grenier aménageable en une chambre mansardée. Au niveau -1: cave saine. D'un point de vue technique: châssis en ALU SV, toiture saine et isolée, électricité non conforme, chauffage par convecteur au gaz. Maison habitable rapidement et libre à l'acte. Frais d'enregistrement à 3% pour premier achat! A DECOUVRIR AU 04/366.00.26!

Adresse :

Rue de la Boverie 229 - 4100 Seraing

Documents

Général

Référence 6733952
Catégorie Maison
Meublé Non
Nombre de chambres 3
Nombre de salles de bain 1
Jardin Oui
Surface du jardin 130 m²
Garage Non
Terrasse Oui
Parking Non
Surface habitable 115 m²
Surface du terrain 213 m²
Disponibilité à l'acte

Nom, catégorie & situation

Nombre d'étages (numéro) 2

Bâtiment

Parking intérieur Non
Parking extérieur Non
Type de toit en pente

Equipement de base

Accès handicapés Non
Cuisine Oui
Chauffage (ind/coll) (type (ind/coll)) individuel
Ascenseur Non
Double vitrage Oui
Chauffage (Format/energie) gaz (chau. centr.)
Type de cuisine non-équipée
Sdb (Type) bain

Spécificités terrain

Orientation du bâtiment (-) est
Type d'environnement zone d'habitation
Exposition de la façade avant (-) ouest
Risque d'inondation (type innondation) pas situé en zone inondable
Risque d'inondation 2023 (type innondation) Classe A (aucune chance)

En chiffres

Surface bâtie (-) 66
Surface de terrasse 2 12 m²
Nbre de toilette(s) (nombre) 1
Chambre 1 (surface) 14 m²
Chambre 2 (surface) 14 m²
Chambre 3 (surface) 26 m²
Largeur de façade 4
Nbre de terrasse(s) (nombre) 1
Salle de séjour (surface) 14 m²
Salle à manger (surface) 14 m²
Cuisine (surface) 14 m²
Orientation de la terrasse 1 (-) est

Domaine juridique

Affectation urbanistique (-) Zone d'habitat
Servitude Non
Jugement en cours Non
Permis de bâtir Oui
Permis de lotir Non
Destination bâtiment (type) privé - habitation
Droit de préemption Non
Affectation urbanistique zone d'habitat
Intimation en justice Non

Equipement extérieur

Piscine Non
Jardin (détails) plat

Charges & Rendement

Sous régime TVA Non
Loué Non

Cadastre

Section (-) E497
Numéro (n°) E7
Surface (ha/a/ca) (surf. (ha/a/ca)) 213
Revenu cadastral (€) (montant) 406 €

Raccordements

Égouts Oui
Électricité Oui
Télévision par cable Oui
Gaz Oui
Câbles téléphoniques Oui
Eau Oui

Équipements techniques

Châssis (Ouvertures) aluminium

Caractéristiques Principales

Surface de terrasse 1 12 m²

Type de matériau & évaluation

Type de revêtement de sol carrelages

À proximité

Magasins Oui
Ecoles Oui
Transports en commun Oui
Centre sportif Oui
Autoroute Oui

Certificats / Attestations

Certificat d'électricité (oui/non) oui, non conforme

Divers

Grenier Oui
Cave Oui

Energie

Label PEB (Classe) D
PEB E-SPEC (kwh/m²/an) (Consommation énergétique) 321
E total (Kwh/an) 43743
PEB code unique (-) 20200216003150
Prendre contact pour le bien : 6733952

* Champs obligatoires

Sélection des points d'intérêts
Préférences pour les cookies

La protection de vos données personnelles est importante pour nous. C’est pourquoi nous détaillons ci-dessous les différents services et fonctionnalités du site qui utilisent des cookies et nous vous laissons décider des cookies que vous souhaitez autoriser ou refuser.

Veuillez cependant noter que si vous bloquez certains types de cookies, cela pourrait impacter votre expérience de navigation sur notre site ainsi que les fonctionnalités disponibles.

Nous utilisons des cookies fonctionnels obligatoires pour assurer le bon fonctionnement du site. Ils sont, par exemple, nécessaires pour retrouver le résultat d’une recherche ou enregistrer le choix de la langue.

Certaines fonctionnalités, comme l’affichage de vidéos ou de cartes géographiques, sont assurées via des composants externes développés par des partenaires comme YouTube ou Google. Certains composants utilisent des cookies qui sont susceptibles de permettre à ces tiers de suivre le comportement des internautes afin, par exemple, de réaliser du ciblage publicitaire. L’activation de ces fonctionnalités et des cookies associés est donc soumis à votre consentement.