
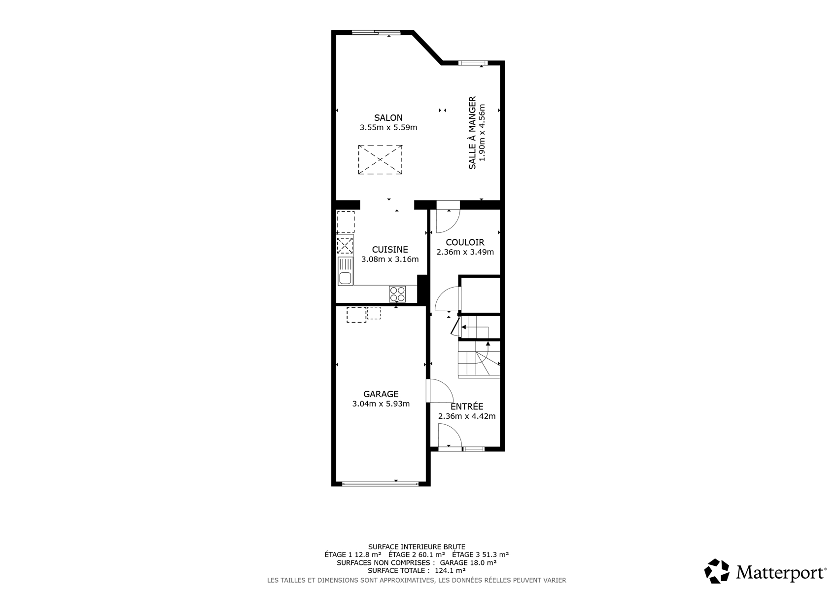
Visite virtuelle : https://my.matterport.com/show/?m=qikJTgUnjM1 - L'agence immobilière Sciara à le plaisir de vous présenter cette jolie maison mitoyenne avec 2 emplacements de parking devant et un garage, située proche de l'ensemble des commodités et grands axes. Profitant d'une structure en béton, le bâtiment se compose d'un hall d'entré, le garage avec porte électrique, avec salon/salle à manger ouvert sur une cuisine équipée ainsi qu'une agréable terrasse et jardin plat sur l'arrière. Au premier étage, un hall de nuit avec 3 chambres (dont une avec dressing) et une salle de bain (douche à l'italienne, WC, évier). Au niveau -1: cave. D'un point de vue technique: 12 panneaux photovoltaiques, clim, l'immeuble possède des chassis en PVC double vitrage avec volets électriques, d'un chauffage central au gaz et d'une installation électrique CONFORME jusque 2032. L'immeuble permet l'accès au droits d'enregistrements réduits (RC:1016€). Maison saine et très bien entretenue, venez déposer vos valises! Maison libre le 01/09/2026, loyer proposé par les propriétaires entre temps : 1000€/mois hors charges (de l'acte jusqu'au 01/09/2026). A découvrir! Infos au 043660026!
Adresse :
Rue du Bassin 27 - 4030 Liège Grivegnée
Référence | 7212481 |
---|---|
Catégorie | Maison unifamiliale |
Meublé | Non |
Nombre de chambres | 3 |
Nombre de salles de bain | 1 |
Jardin | Oui |
Surface du jardin | 82 m² |
Garage | Oui |
Terrasse | Oui |
Parking | Oui |
Surface habitable | 159 m² |
Surface du terrain | 240 m² |
Disponibilité | 01/09/2026 |
Nombre de garage | 1 |
---|---|
Parking intérieur | Oui |
Parking extérieur | Oui |
Parking(s) extérieur (nombre) | 2 |
Type de toit | toit plat |
Accès handicapés | Non |
---|---|
Cuisine | Oui |
Chauffage (ind/coll) (type (ind/coll)) | individuel |
Ascenseur | Non |
Double vitrage | Oui |
Chauffage (type) | gaz (chau. centr.) |
Type de cuisine | équipée |
Sdb (type) | bain |
Orientation du bâtiment (façade arrière) | sud |
---|---|
Type d'environnement | calme |
Type d'environnement 2 | zone d'habitation |
Exposition de la façade avant | nord |
Risque d'inondation (type innondation) | pas situé en zone inondable |
Risque d'inondation 2023 (type innondation) | Classe A (aucune chance) |
Largeur front de rue | 6 |
---|---|
Surface bâtie (surf. bât. princ.) | 95 |
Nbre de toilette(s) (nombre) | 1 |
Chambre 1 (surface) | 13 m² |
Chambre 2 (surface) | 10 m² |
Chambre 3 (surface) | 9 m² |
Largeur de façade | 6 |
Nbre de terrasse(s) (nombre) | 1 |
Salle de séjour (surface) | 20 m² |
Salle à manger (surface) | 8 m² |
Cuisine (surface) | 10 m² |
Orientation de la terrasse 1 | sud |
Buanderie | Oui |
---|---|
Cave | Oui |
Volets | Oui |
---|---|
Sécurité | Oui |
Alarme | Oui |
Piscine | Non |
---|---|
Jardin (détails) | plat |
Sous régime TVA | Non |
---|---|
Loué | Non |
Habité (détails) | proprios |
Section | B |
---|---|
Numéro (n°) | 145b7 |
Revenu cadastral (€) (montant) | 1016 € |
Servitude | Non |
---|---|
Jugement en cours | Non |
Permis de bâtir | Non |
Permis de lotir | Non |
Destination bâtiment (type) | privé - unifamilial |
Droit de préemption | Non |
Affectation urbanistique | zone d'habitat |
Intimation en justice | Non |
Égouts | Oui |
---|---|
Électricité | Oui |
Télévision par cable | Oui |
Gaz | Oui |
Câbles téléphoniques | Oui |
Eau | Oui |
Châssis (type) | pvc |
---|
Surface de terrasse 1 | 30 m² |
---|
Type de revêtement de sol | carrelages |
---|
Magasins | Oui |
---|---|
Ecoles | Oui |
Transports en commun | Oui |
Centre sportif | Oui |
Autoroute | Oui |
Certificat d'électricité (oui/non) | oui, conforme |
---|
Label PEB (classe) | C |
---|---|
PEB E-SPEC (kwh/m²/an) | 248 |
E total (Kwh/an) | 39567 |
PEB code unique | 20250730020054 |
PEB valide jusqu'au (datetime) | 30/07/2035 |
Date du PEB (datetime) | 30/07/2025 |