Studio - option v. 4000 Liège

PEB : C
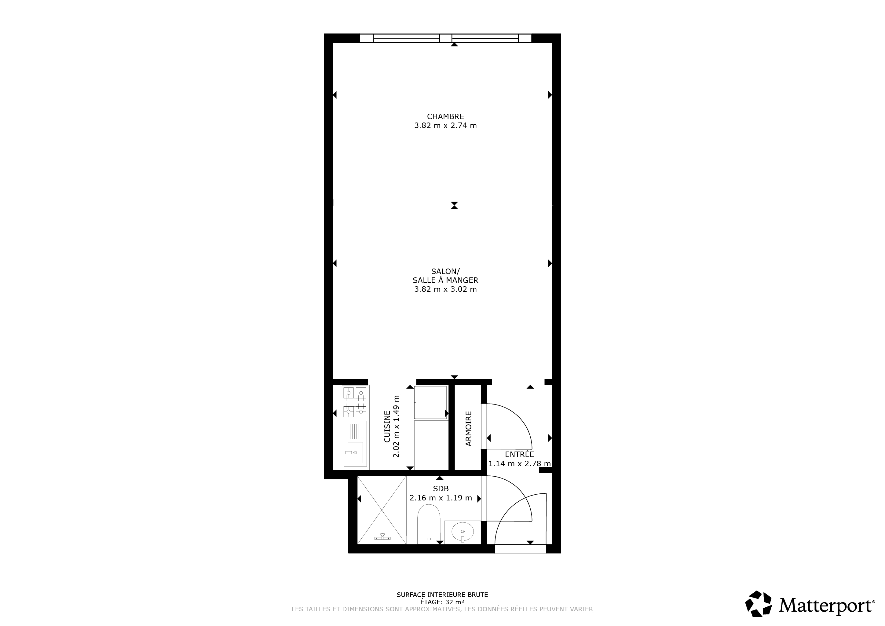
  • 1 chambre
  • 1 salle de bain
  • 32 m²

Description

*OPTION* Visite virtuelle : https://my.matterport.com/show/?m=H6CvAjrGqtoV - CENTRE VILLE : AVIS AUX INVESTISSEURS ! Très beau petit studio entièrement rénové et situé au 8ème étage d'une belle résidence sur le boulevard d'Avroy à 2 pas de l'ensemble des commodités (bus, commerces, écoles, etc.). Ce studio se compose d'un grand espace de vie (living/salle à manger/chambre), une petite cuisine équipée, une salle de bain et un petit débarras. Actuellement loué en location courte durée (Airbnb/Booking). Le studio est loué 80€/nuit, +-2400€/mois brut. Charges mensuelles : 160€/mois comprenant tout sauf l'électricité. Syndic: BeWolf. PEB : C ! Châssis en simple vitrage aluminium, chauffage central au gaz (calorimètres), électricité CONFORME. Idéal pour investisseurs. RC : 684€ !!A SAISIR!!

Adresse :

Boulevard d'Avroy 65 - 4000 Liège

Documents

 Plan.jpg  peb.pdf  controle elec.pdf

Caractéristiques

Général

Référence 7338049
Catégorie Studio
Meublé Oui
Nombre de chambres 1
Nombre de salles de bain 1
Garage Non
Terrasse Non
Parking Non
Surface habitable 32 m²
Disponibilité à l'acte

Nom, catégorie & situation

Etage 8
Nombre d'étages 11

Bâtiment

Parking intérieur Non
Parking extérieur Non
Parking(s) intérieur (nombre) 0
Parking(s) extérieur (nombre) 0

Equipement de base

Accès handicapés Non
Cuisine Oui
Chauffage (ind/coll) (type (ind/coll)) individuel
Ascenseur Oui
Chauffage (type) gaz (chau. centr.)
Type de cuisine semi-équipée
Sdb (type) bain
Parlophone Oui

En chiffres

Nbre de toilette(s) (nombre) 1
Nbre de terrasse(s) (nombre) 0
Salle de séjour (surface) 21 m²
Cuisine (surface) 3 m²
Salle de bain 1 (surface) 3 m²

Domaine juridique

Affectation urbanistique (type) zone d'habitat
Servitude Non
Jugement en cours Non
Permis de bâtir Non
Permis de lotir Non
Destination bâtiment (type) privé - unifamilial
Droit de préemption Non
Affectation urbanistique zone d'habitat
Intimation en justice Non
Type d'intimation pas de correction juridique ou mesure administrative imposée

Charges & Rendement

Charges locataire (montant) 160 €
Sous régime TVA Non
Loué Oui
Détails charges mensuelle
Habité (détails) airbnb/booking

Equipement extérieur

Piscine Non

Sécurité

Contrôle d'accès Oui
Type de contrôle d'accès badge
Porte blindée Oui

Raccordements

Égouts Oui
Électricité Oui
Gaz Oui
Câbles téléphoniques Oui
Eau Oui

Équipements techniques

Châssis (type) aluminium

Spécificités terrain

Type d'environnement centre ville
Type d'environnement 2 central
Exposition de la façade avant ouest
Risque d'inondation (type innondation) pas situé en zone inondable
Risque d'inondation 2023 (type innondation) Classe A (aucune chance)

Cadastre

Revenu cadastral (€) (montant) 684 €

À proximité

Magasins Oui
Ecoles Oui
Transports en commun Oui
Plage Oui
Centre sportif Oui
Autoroute Oui

Certificats / Attestations

Certificat d'électricité (oui/non) oui, conforme

Certificats énergétiques

Label PEB (classe) C
PEB E-SPEC (kwh/m²/an) 215
E total (Kwh/an) 8285
PEB code unique 20180314010428
PEB valide jusqu'au (datetime) 14/03/2028
Date du PEB (datetime) 14/03/2018
Plus d'informations 04/366 00 26
  Afficher la carte et les points d'intérêt
Préférences pour les cookies

La protection de vos données personnelles est importante pour nous. C’est pourquoi nous détaillons ci-dessous les différents services et fonctionnalités du site qui utilisent des cookies et nous vous laissons décider des cookies que vous souhaitez autoriser ou refuser.

Veuillez cependant noter que si vous bloquez certains types de cookies, cela pourrait impacter votre expérience de navigation sur notre site ainsi que les fonctionnalités disponibles.

Nous utilisons des cookies fonctionnels obligatoires pour assurer le bon fonctionnement du site. Ils sont, par exemple, nécessaires pour retrouver le résultat d’une recherche ou enregistrer le choix de la langue.

Certaines fonctionnalités, comme l’affichage de vidéos ou de cartes géographiques, sont assurées via des composants externes développés par des partenaires comme YouTube ou Google. Certains composants utilisent des cookies qui sont susceptibles de permettre à ces tiers de suivre le comportement des internautes afin, par exemple, de réaliser du ciblage publicitaire. L’activation de ces fonctionnalités et des cookies associés est donc soumis à votre consentement.